Casa Roca 项目位于约塞米蒂湖,这里拥有得天独厚的自然环境和国家公园的迷人景色。这所住宅的设计旨在最大限度地利用这些自然景观,并创造视觉上的通透感。


© Rafael Gamo

© Rafael Gamo

© Rafael Gamo

© Rafael Gamo

© Rafael Gamo

© Rafael Gamo

© Rafael Gamo

© Rafael Gamo

© Rafael Gamo

© Rafael Gamo

© Rafael Gamo

© Rafael Gamo


© Rafael Gamo

© Rafael Gamo

© Rafael Gamo

© Rafael Gamo

© Rafael Gamo
总体而言,这座住宅的设计旨在提供视觉上的通透感,让住户可以沉浸在山区环境和自然元素之中,成为约塞米蒂湖区生活体验不可分割的一部分。


© Rafael Gamo

© Rafael Gamo

© Rafael Gamo

© Rafael Gamo

© Rafael Gamo
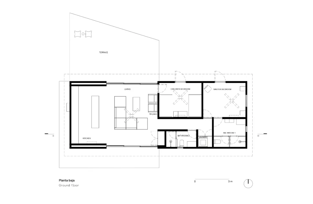
▽建筑平面

▽建筑立面

© PPAA

© PPAA
内容低质
不看此公众号
人划线