Villa W是SHOVK设计的一座极简主义住宅,坐落在巴厘岛的山地中,与自然背景融为一体,呈现出独特的视觉魅力。

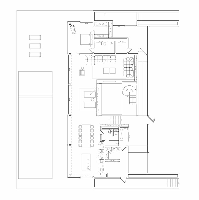
这座房屋由三个独特的区块组成,每个区块都赋予了房屋独特的特色。第一个区块采用大理石顶板,设有一个露台和无边泳池,延伸至悬崖之外,提供了巴厘岛郁郁葱葱的绿色植被和未开发的山地景观的全景视野。
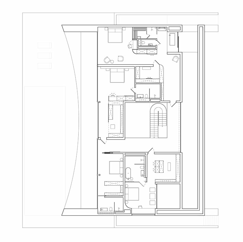
第二个区块是地面层,包含白天的公共空间、健身房和技术设施。第三个区块是一个弯曲的悬挑一楼,容纳了夜间区域的房间,为整个结构增添了对比的形式。
Villa W的入口隐藏在一个朴素的立面后面,通往宽敞而私密的入口大厅,通过厨房和客厅的宽大全景玻璃窗,揭示了山脉和海洋的景观。

入口旁边是一个紧凑的健身房,通向一个窄小的庭院,设有游泳池和室外淋浴。
整个房屋的两层都采用了全景玻璃,确保了对岛屿景观的不间断视野,增强了住所与周围自然环境的融合。
SHOVK的Villa W将建筑与自然和谐地融合在一起,将建筑环境与周围景观无缝地结合在一起。


项目信息:
名称:Villa W
建筑师:SHOVK | @shovk.studio
首席建筑师:Ruslan Lytvynenko,Anton Verhun
面积:550㎡
地点:印度尼西亚巴厘岛